Property Features
- Welcome to West Gate, the epitome of luxury and convenience, centrally located in the vibrant heart of Moncton.
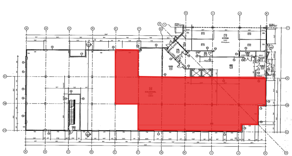
- This dynamic new development offers 5,200 sf of prime commercial space, ideal for retail, dining, or professional services.
- With 194 feet of frontage on Main Street and 85 feet on Vaughan Harvey, these spaces are designed to maximize visibility and foot traffic.
- With a focus on superior design and craftsmanship, this space is thoughtfully crafted to deliver both functionality and aesthetic appeal. Featuring large windows that provide excellent visibility along both Main Street and Vaughan Harvey Boulevard, it offers a bright, welcoming environment ideal for showcasing your business in style.
Location
Positioned to extend Main Street further west, West Gate is surrounded by growing residential communities, offering your business high visibility in a thriving commercial hub. With easy access, ample parking, and a seamless connection to Moncton’s bustling core, West Gate is the ideal location for your business to grow and succeed. Strategically located just steps from vibrant shopping centers, the picturesque Jones Lake, and the charming downtown area, West Gate is set to become the city’s next go-to destination.

















